Description

Bright and beautifully renovated modern apartment (76 m²) with lift and sunny west-facing balcony overlooking the Sloterplas in Amsterdam Nieuw-West. The current owner has completely refurbished the property, including a new kitchen, bathroom, and flooring throughout. The use of natural materials such as wooden slats and the exposed concrete of the original structure gives the apartment a calm and distinctive character. Large windows and a wide sliding door allow maximum natural light to flow through from both sides of the apartment. The ground lease has been bought off in perpetuity, and there is a private storage room in the basement. Experience the comfort of a bright two-bedroom apartment with a sunny balcony and open views of greenery and Sloterplas, all just a 15-minute cycle from the vibrant heart of Amsterdam. We look forward to welcoming you.

SURROUNDINGS
Situated on the ninth floor, the apartment forms part of a well-maintained residential complex with two lifts, designed in 1964 by architect Piet Zanstra. The complex is located in the ‘Westelijke Tuinsteden’  (Western Garden Cities), designed according to the principles of Light, Air and Space. Both the building and the area reflect these ideals: the apartment receives abundant natural light and offers magnificent views over the water and surrounding greenery.

The Sloterplas provides plenty of recreational opportunities on and around the water, and the popular city beach (Stadsstrand) is within walking distance. Nearby you’ll find Restaurant Oeverzicht, Café Restaurant Buiten, and the hidden gem Het Boothuis, located in the Sloterplas marina. For everyday shopping, Mercatorplein and Plein ’40–’45 are conveniently close by. The city centre is also just a 15-minute cycle away.
The apartment enjoys excellent transport connections. The A10 (S105), A4 and A5 motorways can be reached within minutes, while the metro station is only a short walk away. Metro lines 50 and 51 provide quick access to Station Lelylaan, Amsterdam Central Station, and Station Zuid. Parking is readily available right outside the building.

ENTRANCE
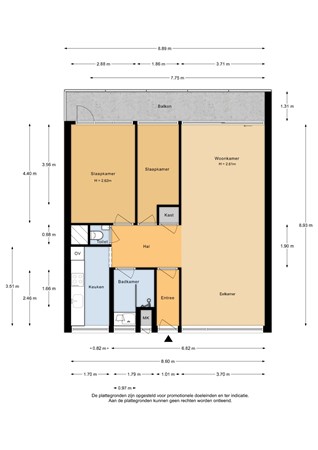
Secure communal entrance hall on the ground floor with two lifts and access to the private storage room in the basement. Located on the ninth floor, the apartment benefits from its own entrance, providing a high level of privacy. Inside, a small vestibule finished with wooden slats leads to a spacious hallway with a separate toilet, bathroom, and access to all rooms.

LIVING ROOM
The bright through-lounge faces west and features a 4 metre-wide sliding door opening onto the balcony. With windows on both the east and west sides, the space is filled with natural light. The combination of wood and concrete gives the apartment a unique and serene appearance. A 2-metre-wide mirrored wall creates a striking feature, offering stunning views of the Sloterplas from the moment you enter. The ceiling height of 2.62 m adds to the sense of space, while the same well-maintained laminate flooring runs throughout the entire apartment.

KITCHEN
Located on the gallery side, the modern white kitchen is equipped with built-in appliances, including an induction hob, oven, dishwasher, and fridge-freezer. The ceramic worktop provides a sleek, durable finish, and there is ample cupboard space.

TWO BEDROOMS
The two bedrooms are situated next to the living room. The main bedroom has direct access to the balcony and easily accommodates a kingsize bed and wardrobe. The second bedroom is ideal as a child’s room or home office.

BATHROOM
The modern bathroom, finished with concrete-look floor tiles and crisp white wall tiles, is efficiently designed. It includes a stylish vanity unit with washbasin, a spacious walk-in shower with glass screen, and plumbing for a washing machine.

BALCONY
The generous 12 m² west-facing balcony enjoys sunshine throughout the afternoon and evening, offering spectacular views over the Sloterplas, the perfect spot to relax and enjoy the sunset.

STORAGE
In the basement, there is a spacious heated storage room  (6 m²) with ample shelving and enough space for two bicycles. A power outlet is also available for charging an electric bike.

PARTICULARS
+ Spacious and bright 76 m² apartment in Amsterdam Nieuw-West
+ Located on the 9th floor, accessible by lift
+ Panoramic views over the greenery and the Sloterplas lake
+ Private storage room in the basement (approx. 6 m²)
+ Ground lease bought off in perpetuity
+ Two bedrooms (option for a third)
+ New kitchen, bathroom and toilet
+ Energy label C: district heating and HR+ double glazing
+ Service charges: €257 (excluding heating advance)
+ Professionally managed owners’ association with multi-year maintenance plan
+ Excellent parking availability — up to two parking permits per address

For more information, please view the video, digital brochure and map. To schedule a viewing, feel free to call the office: 020 - 210 1048 or send an email. For specific questions, please contact the selling broker: Marieke Lammers.

Features