Beschrijving

Royaal dubbel bovenhuis van 116m2 op de derde en vierde etage in Amsterdam-Zuid. De woning staat op eigen grond aan de gezellige Amstelveenseweg in de geliefde wijk de Schinkelbuurt. De ruime woonkamer ensuite heeft prachtig hoge plafonds en is heerlijk licht. Aan de voorzijde is een aparte werkkamer en aan de achterzijde is de open woonkeuken, badkamer en het zonnige balkon op het westen. In de hal is de interne trap naar de vierde etage waar maar liefst drie slaapkamers zijn. Ook is er genoeg ruimte om een tweede badkamer te realiseren. Hier heb je meer dan genoeg mogelijkheden om het geheel naar eigen smaak in te richten en er je eigen thuis van te maken. Kom gerust kijken, we ontvangen je graag.

+ English version below +

OMGEVING
Het Vondelpark is op 5 minuten loopafstand. Voor je dagelijkse boodschappen kun je terecht bij leuke buurtwinkels op de Amstelveenseweg zelf, de Zeilstraat of het Hoofddorpplein. Sfeervolle koffietentjes en terrasjes zijn er volop, zoals Anne & Max en Bagels & Beans. Langs het water van de Schinkel en in de omgeving van het Hoofddorpplein liggen veel leuke restaurants en gezellige cafés, zoals Stadscafé van Mechelen, Bar Leijten en Gent aan de Schinkel. Voor ontspanning en sport is er het Vondelpark en binnen 10 minuten ben je met de fiets in het centrum van Amsterdam of op de Zuidas. Bovendien vind je in de nabije omgeving tal van (internationale) scholen, sportclubs en kinderopvanglocaties. Ook is het appartement zeer gunstig gelegen ten opzichte van de uitvalswegen. Met de auto ben je met 5 minuten op de Ringweg A10 en station Amsterdam-Zuid is de verbinding om snel op andere locaties in de stad te komen.

HAL
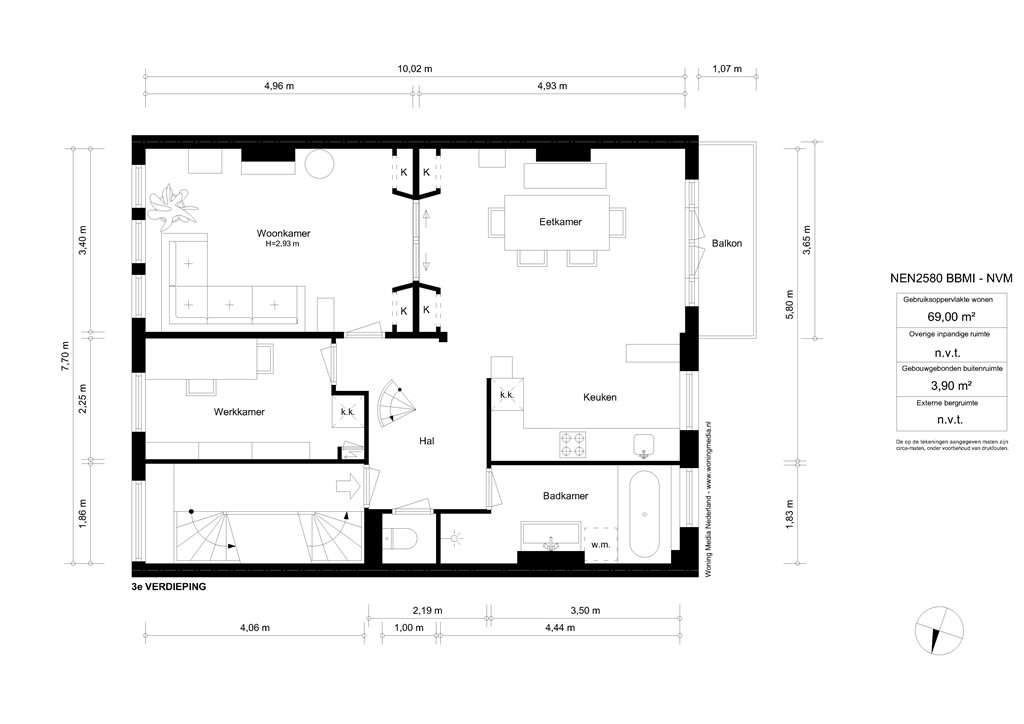
Bij binnenkomst ervaar je direct het hoge plafond (2,93m) van de woning. Ook is hier het toilet. Vanuit de hal zijn alle vertrekken te betreden.
 
WOONKAMER EN SUITE & WOONKEUKEN
De woonkamer heeft door de originele en suite een aparte eetkamer achter en een woonkamer aan de voorzijde. Hier is de originele marmeren schouw bewaard gebleven. De royale woonkeuken aan de achterzijde grenst aan het balkon. Door een groot gedeelte van het appartement ligt een houten vloer van Siberisch grenen. Alle ramen hebben dubbel glas, waardoor het heerlijk stil is in de woning zelf.

BALKON
Het balkon ligt op het westen. Hier geniet je in de middag en de avond heerlijk van de zon en heb je veel privacy. Uniek voor Amsterdam is het vrije zicht; je kijkt uit op een ruime binnentuin met veel groen.

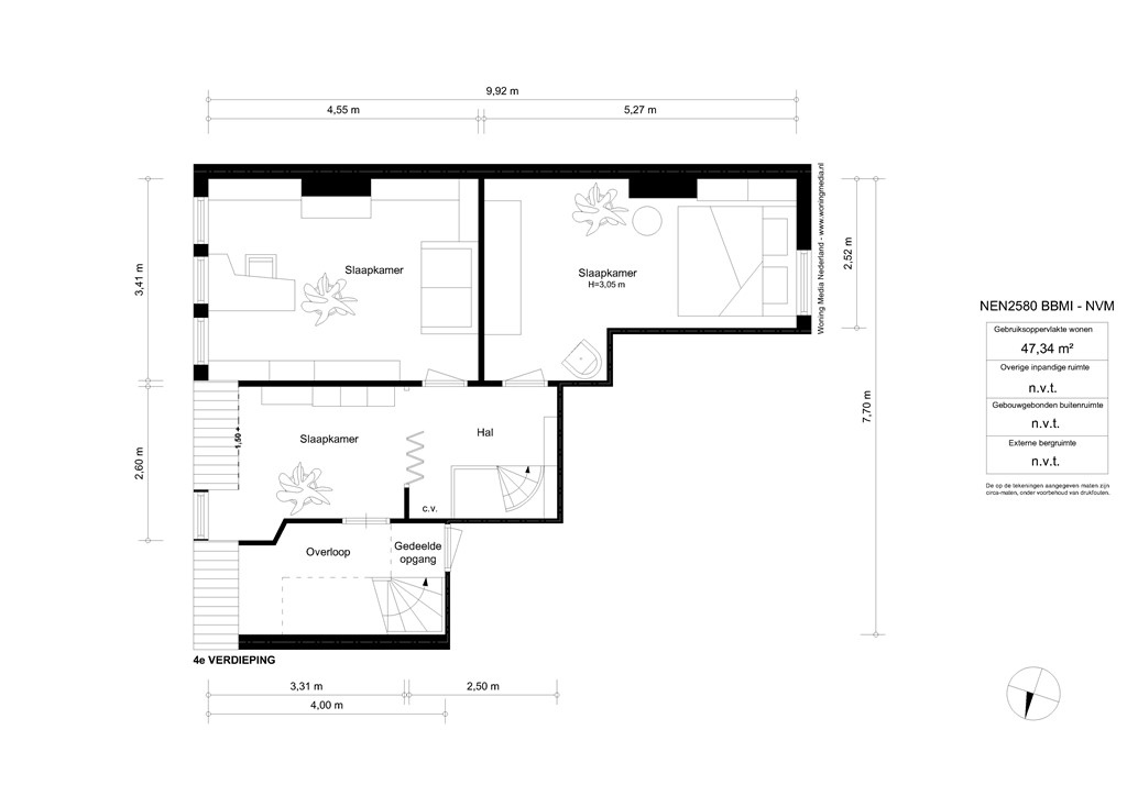
4 SLAAPKAMERS
Op de woonetage is de eerste slaapkamer, naast de woonkamer. Deze wordt nu gebruikt als werkkamer. Op de vierde etage zijn twee slaapkamers aan de voorzijde, van waaruit de torens van het Rijksmuseum te zien zijn, en een slaapkamer aan de achterzijde.  

BADKAMER
De ruime badkamer is achter de keuken gesitueerd. Je hebt hier een inloopdouche, wastafelmeubel en ligbad. Een tweede badkamer op de slaapetage is mogelijk..

VVE
De Vereniging van Eigenaren (nr 186, 188 en 190) wordt professioneel beheerd en heeft een MeerJarenOnderhoudsPlan. Servicekosten € 153,- per maand.

BIJZONDERHEDEN
+ Dubbel bovenhuis van 116m2 in Amsterdam Zuid
+ Gelegen op eigen grond
+ Om de hoek van het Vondelpark en op fietsafstand van de Zuidas
+ Vier slaapkamers en tweede badkamer mogelijk
+ Balkon op het westen, met vrij zicht op de binnentuin 
+ Energielabel C
+ Professionele VVE beheerder en Meerjarenonderhoudsplan aanwezig
+ Levering in overleg

Kijk voor meer informatie naar de video, de digitale brochure en plattegrond. Voor het plannen van een afspraak, bel gerust met kantoor: 020 - 210 1048 of stuur een email. Voor specifieke vragen kun je terecht bij verkopend makelaar: Marieke Lammers

+++

Spacious double upper-level apartment of 116 m² located on the third and fourth floors in Amsterdam-Zuid.
The property is situated on freehold land on the lively Amstelveenseweg, in the popular Schinkelbuurt neighborhood. The generous en-suite living room features beautifully high ceilings and enjoys an abundance of natural light. At the front of the apartment there is a separate study, while at the rear you will find the open-plan kitchen, the bathroom, and a sunny west-facing balcony.
From the hallway, an internal staircase leads to the fourth floor, which offers no fewer than three bedrooms. There is also ample space to create a second bathroom. This property provides more than enough opportunities to tailor the home entirely to your own taste and turn it into your personal haven. You are very welcome to come and view the property — we would be delighted to show you around.

SURROUNDINGS
The Vondelpark is just a five-minute walk away. For daily groceries, you can visit the charming local shops on the Amstelveenseweg itself, the Zeilstraat, or Hoofddorpplein. There is an abundance of cosy coffee spots and terraces nearby, such as Anne & Max and Bagels & Beans. Along the Schinkel canal and around Hoofddorpplein, you will find many excellent restaurants and inviting cafés, including Stadscafé Van Mechelen, Bar Leijten, and Gent aan de Schinkel.
For relaxation and sports, the Vondelpark is close by, and within ten minutes by bike you can reach either Amsterdam city centre or the Zuidas business district. In addition, the immediate area offers a wide range of (international) schools, sports clubs, and childcare facilities. The apartment is also very conveniently located in relation to major roads: by car, the A10 Ring Road can be reached within five minutes, and Amsterdam Zuid station provides fast connections to other parts of the city.

ENTRANCE HALL
Upon entering, you are immediately struck by the impressive ceiling height (2.93 m). The toilet is also located here. All rooms in the apartment are accessible from the hallway.

EN-SUITE LIVING ROOM & OPEN-PLAN KITCHEN
Thanks to the original en-suite layout, the living room features a separate dining room at the rear and a sitting area at the front. The original marble fireplace has been preserved. The spacious open-plan kitchen at the rear of the apartment adjoins the balcony. A large part of the apartment is fitted with a wooden floor made of Siberian pine. All windows are double-glazed, ensuring a pleasantly quiet living environment.

BALCONY
The balcony faces west, allowing you to enjoy the afternoon and evening sun in privacy. A unique feature for Amsterdam is the unobstructed view: the balcony overlooks a spacious, green inner garden.

4 BEDROOMS
The first bedroom is located on the main living level, adjacent to the living room, and is currently used as a home office. On the fourth floor, there are two bedrooms at the front of the apartment, offering views of the towers of the Rijksmuseum, and one bedroom at the rear.

BATHROOM
The spacious bathroom is situated behind the kitchen and features a walk-in shower, a washbasin cabinet, and a bathtub. A second bathroom on the bedroom level is possible.

HOMEOWNERS’ ASSOCIATION (VvE)
The homeowners’ association (numbers 186, 188, and 190) is professionally managed and has a long-term maintenance plan in place. Service charges are €153 per month.

FEATURES
+ Double upper-level apartment of 116 m² in Amsterdam-Zuid
+ Situated on freehold land
+ Around the corner from the Vondelpark and within cycling distance of the Zuidas
+ Four bedrooms, with the option to create a second bathroom
+ West-facing balcony with unobstructed views of the communal garden
+ Energy label C
+ Professionally managed homeowners’ association with a long-term maintenance plan
+ Delivery in consultation

For more information, please view the video, digital brochure, and floor plans. To schedule an appointment, feel free to contact our office at +31 20 210 1048 or send an email. For specific questions, please contact the selling agent, Marieke Lammers.

Kenmerken