Beschrijving

Elegante architectenloft met eigen daktuin in Amsterdam Noord.

Wonen in een door een architect ontworpen, energieneutrale loft met daktuin, eigen parkeerplaats én afgekochte erfpacht — midden in het creatieve hart van Amsterdam Noord. Deze stijlvolle Superloft (ca. 133 m²) combineert ruimte, licht en luxe op een unieke manier. Dankzij de hoge glazen gevel en open indeling ervaar je hier direct een indrukwekkend gevoel van ruimte en vrijheid, terwijl hoogwaardige en duurzame materialen zorgen voor een warme, elegante uitstraling. Slimme domotica maakt het dagelijks comfort compleet.

++ English version below ++

De loft beschikt over een royale living met open keuken, twee slaapkamers, een luxe badkamer en een multifunctionele entresol — ideaal als werkplek of extra lounge. Buiten geniet je van een zonnige daktuin op het westen én een gemeenschappelijk dakterras met uitzicht over het IJ en het havengebied.

Daarnaast beschik je over een eigen parkeerplaats, berging en fietsenstalling in de onderbouw.

Duurzaam en toekomstbestendig wonen. Hier woon je volledig energieneutraal en comfortabel:
+ Energielabel A++
+ Warmtepomp en vloerverwarming
+ Warmte-koudeopslag (WKO)
+ Zonnepanelen
+ Triple glas

Een belangrijk pluspunt in Amsterdam: de eeuwigdurende erfpacht is volledig afgekocht (ook voor de parkeerplaats).

OMGEVING: Buiksloterham
De woning ligt in de populaire wijk Buiksloterham, tussen hotspots zoals EYE Filmmuseum en de NDSM-werf. Hier vind je een mix van creatieve bedrijvigheid, horeca en cultuur, met volop mogelijkheden voor sport en wellness in de buurt.

Voor dagelijkse boodschappen zijn het Mosplein en de Van der Pekstraat dichtbij, met winkels en een gezellige markt. De buurt is geliefd bij jonge stellen en gezinnen dankzij de combinatie van rust, water en stedelijke dynamiek.

Binnen enkele minuten ben je met de pont op Amsterdam Centraal. Ook de Noord/Zuidlijn (metrostation Noorderpark) en de A10 zijn snel bereikbaar.

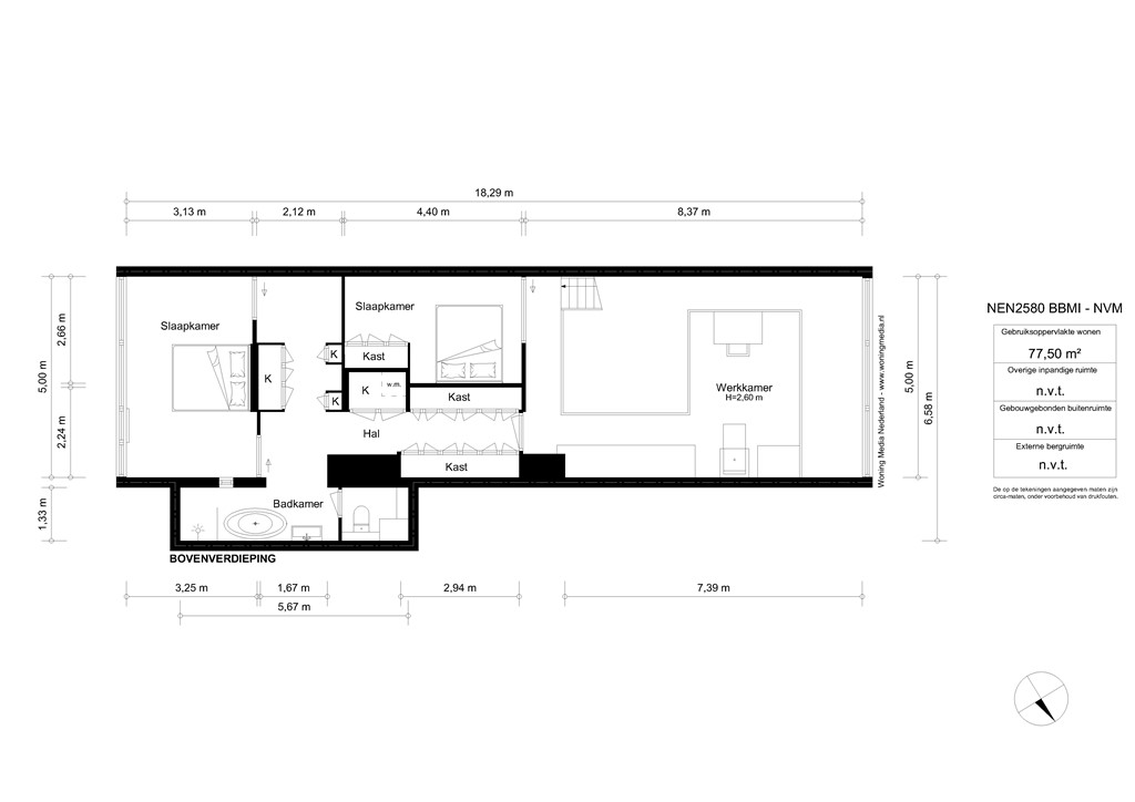
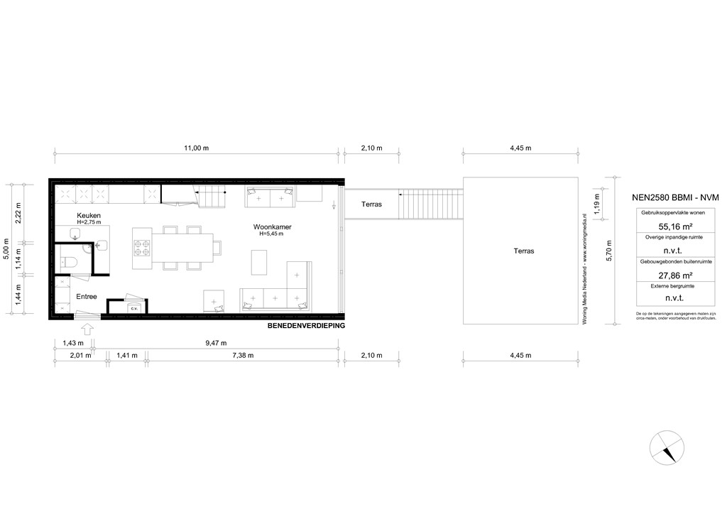
INDELING

Eerste etage
Via de lift bereik je de woning. In de hal bevinden zich de garderobe en een separaat toilet.

De living is ruim en licht, met een hoge glazen pui die zorgt voor een prachtige lichtinval. De open keuken met kookeiland is luxe uitgevoerd en voorzien van hoogwaardige inbouwapparatuur, waaronder een Bora inductiekookplaat, combi-oven, vaatwasser en kokendwaterkraan. Een extra pantry biedt praktische opbergruimte.

Vanuit de woonkamer stap je direct de daktuin (ca. 28 m², op het westen) op — perfect voor middag- en avondzon.

Tweede etage
Hier bevinden zich twee slaapkamers, de badkamer en een praktische walk-in closet. Dankzij slimme schuifwanden is de indeling flexibel aan te passen. De hoofdslaapkamer ligt rustig aan de voorzijde. De tweede kamer is momenteel in gebruik als kinderkamer. 

De luxe badkamer is afgewerkt met beton ciré en beschikt over een ligbad, inloopdouche, wastafelmeubel en tweede toilet.

Entresol
Een open en lichte ruimte, ideaal als werkplek, lounge of extra kamer. Indien gewenst eenvoudig af te sluiten.

Parkeren & berging
+ Eigen parkeerplaats in de ondergelegen garage
+ Fietsenstalling aanwezig
+ Berging van ca. 5 m²

Bijzonderheden
+ Architect: Marc Koehler Architects
+ Woonoppervlakte ca. 133 m²
+ Energieneutraal (A++)
+ Eeuwigdurende erfpacht afgekocht
+ Daktuin op het westen + gemeenschappelijk dakterras
+ Twee slaapkamers + entresol
+ Voorzien van slimme domotica
+ Eigen parkeerplaats optioneel € 55.000
+ Professioneel beheerde VvE
+ Oplevering in overleg

BEZICHTIGING
Plan eenvoudig zelf een bezichtiging via de knop ‘Neem contact op’ en ontvang direct een link om een afspraak in te plannen. Liever persoonlijk contact? Neem gerust contact met ons op: 020 210 10 48. Voor specifieke vragen kun je terecht bij de verkopend makelaar, Susanne Dijkstra.

+++

Elegant, architect-designed loft with private roof garden in Amsterdam North.

An exceptional, architect-designed and energy-neutral loft with private roof garden, parking, and a fully paid-off perpetual ground lease — set in the creative heart of Amsterdam Noord. This beautifully designed Superloft of approximately 133 m² offers a rare combination of space, light, and refined modern living. The striking double-height glass façade floods the interior with natural light, while the open-plan layout creates a wonderful sense of volume and flow. High-quality, sustainable materials add warmth and understated elegance throughout. Integrated smart home technology completes the experience of effortless, contemporary living.

The property features a generous living space with an open kitchen, two bedrooms, a luxurious bathroom, and a versatile mezzanine — ideal as a home office or additional lounge area. Outside, a private west-facing roof garden provides the perfect setting for afternoon and evening sun, complemented by a shared rooftop terrace with panoramic views across the IJ and the surrounding harbour area.

A private parking space, storage unit, and bicycle facilities are all located within the building.

Sustainable, future-proof living.

Designed with sustainability and comfort in mind, this home offers:
+ Energy label A++
+ Heat pump and underfloor heating
+ Thermal energy storage system (ATES)
+ Solar panels
+ Triple glazing

Importantly for Amsterdam, the perpetual ground lease has been fully bought off, including the parking space.

LOCATION: Buiksloterham

Situated in the sought-after Buiksloterham district, the property lies between cultural and creative hotspots such as the EYE Filmmuseum and the vibrant NDSM area, home to an array of restaurants, cafés, sports and wellness facilities, and creative enterprises.

For everyday shopping, the nearby Mosplein and Van der Pekstraat offer a variety of shops and a lively market. The area is particularly popular among young professionals and families, thanks to its blend of tranquillity, water, and urban energy.

Frequent ferries provide quick access to Amsterdam Central Station within minutes. The North/South metro line (Noorderpark station) and the A10 ring road are also easily accessible.

LAYOUT

First floor
A secure communal entrance and lift lead to the apartment. The entrance hall includes a cloakroom and separate WC.

The living area is bright and spacious, enhanced by the impressive glass façade. The open-plan kitchen with island is fully equipped with high-end appliances, including a Bora induction hob, combination oven, dishwasher, and boiling water tap. An additional pantry provides practical storage. The living space opens directly onto the private roof garden (approx. 28 m²), perfectly positioned for afternoon and evening sun.

Second floor
This level comprises two bedrooms, a luxurious bathroom, and a walk-in wardrobe adjoining the principal bedroom. Clever sliding partitions allow for flexible use of space.

The principal bedroom is quietly positioned at the front, while the second bedroom is currently arranged as a child’s room.

The bathroom is finished in elegant microcement (beton ciré) and includes a bathtub, walk-in shower, vanity unit, and second WC.

Mezzanine
A bright and open space overlooking the living area, ideal as a home office, reading area, or additional lounge. This space can be enclosed if desired.

PARKING & STORAGE 
+ Private parking space in the underground garage
+ Bicycle storage
+ Private storage unit (approx. 5 m²)

KEY FEATURES 
+ Designed by Marc Koehler Architects
+ Approx. 133 m² of living space
+ Energy-neutral home (A++)
+ Ground lease fully bought off (including parking)
+ Private west-facing roof garden & shared rooftop terrace
+ Two bedrooms and mezzanine
+ Smart home technology integrated throughout
+ Private parking space available for € 55.000 (not included in asking price) 
+ Professionally managed VvE (Dutch owners' association)
+ Handover date to be agreed

VIEWINGS 
Viewings can be arranged easily via the “Contact” button, allowing you to book directly online. Prefer personal assistance? Please feel free to get in touch on 020 210 10 48 or contact our listing agent, Susanne Dijkstra, directly.

Kenmerken