Beschrijving

Charmant 2-kamer appartement op de derde verdieping in een prachtig onderhouden Rijksmonument uit 1800 midden in het historische centrum van Amsterdam. Het pand heeft een nieuwe fundering, is goed onderhouden en staat op eigen grond. Kom kijken naar dit charmante appartement met sfeervol houten balkenplafond, een badkamer met ligbad, goede indeling, veel licht binnen en een geweldig uitzicht op de historische panden van Amsterdam Centrum. Boek een bezichtiging, we ontvangen je graag.

+ English version below +

OMGEVING
Wonen in hartje centrum van Amsterdam: tussen het Koninklijk Paleis, de gezellige Jordaan en de recent opnieuw bestrate Nieuwezijds Voorburgwal is het mogelijk. Je woont hier te midden van historie, winkels en horeca, terwijl het appartement zelf rust en comfort biedt. Het Centraal Station is op 8 minuten loopafstand en voor je deur is een ondergrondse Q-park parkeergarage. 

ENTREE
De verzorgde entree is aan de zijkant van het pand, in de Korte Kolksteeg. Er is een intercom met video. Het trappenhuis wordt eenmaal per maand schoongemaakt en de ramen worden gereinigd vanuit de VVE. Je stapt vanuit de gemeenschappelijke hal zo het appartement in.

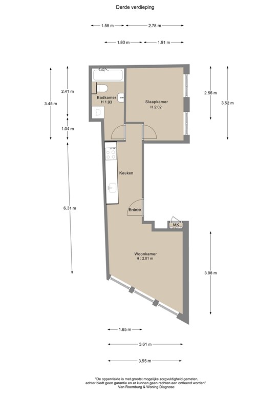
LIVING & KEUKEN
De woonkamer heeft drie ramen aan de Nieuwezijds Voorburgwal en een sfeervol balkenplafond. De keuken is handig in het midden van het appartement geplaatst. Er is een 4-pits kookplaat met afzuigkap, een oven en vaatwasser. In het gehele appartement ligt een massief eikenhouten vloer.

SLAAPKAMER
Aan de rustige achterzijde is de slaapkamer (met voorzetramen). Ook hier een authentiek balkenplafond. Er is voldoende ruimte voor een tweepersoonsbed en een kastenwand. 

BADKAMER
De wit betegelde badkamer is door zijn goede indeling heel compleet. Een ligbad met douche, wastafel, het toilet en de wasmachine/droger aansluiting. Ook is hier de CV-ketel geplaatst.

BIJZONDERHEDEN
+ Charmant 2-kamer appartement van netto 33,21m2 (NEN 2580)
+ Waanzinnig uitzicht op de historische stad
+ Rijksmonument met vernieuwde fundering
+ Het buitenschilderwerk is recent gedaan
+ Eigen grond, dus geen sprake van erfpacht
+ Pand wordt binnenkort gesplitst in vier appartementsrechten
+ Vereniging van Eigenaren wordt opgericht na splitsing
+ Servicekosten van € 100 per maand
+ Projectnotaris Berger Notariaat
+ Oplevering kan per direct; instapklaar

BEZICHTIGEN
Je kunt online een bezichtiging aanvragen, via de knop ‘Vraag bezichtiging aan’. Heb je liever persoonlijk contact, bel gerust met ons kantoor: 020 - 210 1048. Bekijk voor meer informatie de video, digitale brochure en plattegrond. Voor specifieke vragen kun je terecht bij verkopend makelaar: Susanne Dijkstra.

+++

Charming two-room apartment on the third floor in a beautifully maintained national monument from 1800 in the middle of the historic center of Amsterdam. The building has a new foundation, is well maintained and is situated on freehold land. Come and view this charming apartment with an atmospheric wooden beam ceiling, a bathroom with bathtub, a good layout, plenty of natural light and a magnificent view of the historic buildings of Amsterdam city center. Book a viewing, we are happy to welcome you.

SURROUNDINGS
Living in the heart of Amsterdam’s city center: between the Royal Palace, the cozy Jordaan and the recently repaved Nieuwezijds Voorburgwal, it is possible. You live here surrounded by history, shops and restaurants, while the apartment itself offers peace and comfort. Central Station is within 8 minutes walking distance and there is an underground Q-park parking garage at your doorstep.

ENTRANCE
The well-kept entrance is on the side of the building, in the Korte Kolksteeg. There is an intercom with video. The staircase is cleaned once a month and the windows are cleaned by the Homeowners’ Association. From the communal hall you step directly into the apartment.

LIVING ROOM & KITCHEN
The living room has three windows facing the Nieuwezijds Voorburgwal and an atmospheric beam ceiling. The kitchen is conveniently positioned in the middle of the apartment. There is a 4-burner stove with an extractor hood, an oven and a dishwasher. Throughout the entire apartment there is a solid oak wooden floor.

BEDROOM
At the quiet rear side is the bedroom (with secondary glazing). Here too an authentic beam ceiling. There is sufficient space for a double bed and a wardrobe wall.

BATHROOM
The white tiled bathroom is very complete due to its good layout. A bathtub with shower, sink, toilet and connection for a washing machine/dryer. The central heating boiler is also located here.

DETAILS
+ Charming 2-room apartment of net 33.21 m2 (NEN 2580)
+ Stunning view of the historic city
+ National monument with renewed foundation
+ The exterior painting was recently completed
+ Freehold land, so no leasehold
+ The building will soon be divided into four apartment rights
+ Homeowners’ Association will be established after division
+ Service charges of €100 per month
+ Project notary Berger Notariaat
+ Delivery possible immediately; ready to move in

VIEWING
You can request a viewing online via the button ‘Request a viewing’. If you prefer personal contact, feel free to call our office: 020 - 210 1048. For more information, view the video, digital brochure and floor plan. For specific questions, please contact the selling real estate agent: Susanne Dijkstra.

Kenmerken