Beschrijving

Royaal en licht herenhuis aan het water op het autovrije Stettineiland in de duurzame wijk: de Houthavens.

De woning van 154m2 is verdeeld over vier woonlagen en is bijzonder slim ingedeeld. Een ondergrondse parkeerplaats pal tegenover de toegang van je woning en een ligplaats voor een boot met steiger direct aan je huis. Op de begane grond een ruime woonkamer met open keuken en woonkamer aan de gracht. Vier ruime slaapkamers, twee badkamers en een dakterras. De woning is toekomstbestendig met een energielabel A, vloerverwarming en koeling en zonnepanelen. Ook zijn de erfpachtkosten hier mooi laag. Kom kijken en ervaar de hoogwaardige afwerking en slimme indeling in een zeer complete familiewoning in de populaire Houthavens. We ontvangen je graag. 

+++ English version below +++

Wist je dat je ook zelf een bezichtiging kunt plannen? Druk op de knop ‘neem contact op’ en ontvang direct een link om een afspraak in te plannen.

OMGEVING
Ruimte en lichte woningen in een waterrijke omgeving met bruggen en grachten; dat is de wijk de Houthavens. Een kindvriendelijke plek, met autoluwe straten en prachtig uitzicht over het IJ. De gehele wijk is getransformeerd naar een levendige woonwijk met tal van voorzieningen en gezellige cafés en restaurants zoals Anne & Max, hotel & brasserie Vessel (Boat&Co), Brasserie George, Bar Hout, Brouwerij Prael en REM-Eiland.

Op loopafstand is de gezellige Spaarndammerstraat met een breed aanbod aan winkels, goede eetgelegenheden en scholen. Een paar minuten verder brengt je in de gezellige Jordaan, het Prinseneiland, de grachtengordel en de Noordermarkt met de biologische markt op maandag en zaterdag. Ook hier zijn vele boetiekjes en ontelbare restaurants. 

De wijk is uitstekend bereikbaar met het openbaar vervoer. Op loopafstand is bus 22 en 48. De ring A10 is gemakkelijk binnen enkele minuten met de auto te bereiken. Het Centraal Station is op 10 minuten fietsafstand. Ook de pont naar Amsterdam Noord is op loopafstand, om gemakkelijk naar het NDSM-terrein, de A’DAM Toren en het Eye Filmmuseum te gaan.

INDELING

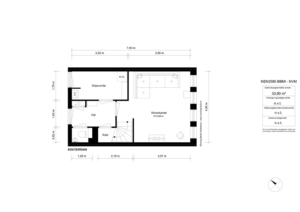
SOUTERRAIN
Het souterrain is heerlijk ruim en functioneel ingedeeld. Vanuit de parkeerkelder stap je direct in je eigen hal, met aan de linkerzijde de grote berging met wasruimte en techniek. (Zoals de thuisbatterij en systemen voor vloerverwarming en koeling.) Aan de andere kant het eerste toilet en een kast voor opslag onder de trap naar boven. De slaapkamer van ruim 15m2 en een plafondhoogte van 2,68m is ideaal te gebruiken als tienerkamer, thuiswerkplek of als gastenverblijf. 

Onder de woning is de parkeergarage. Voor deze woning is je parkeerplek direct bij de ingang van het souterrain. De voorbereidingen voor elektrisch laden zijn reeds getroffen.

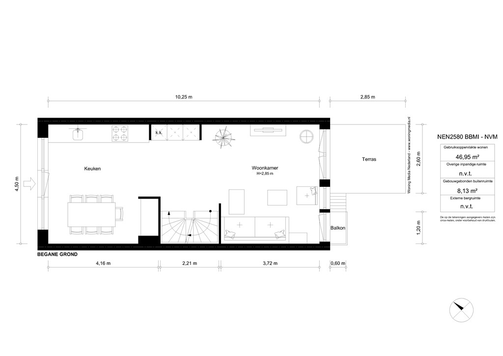
BEGANE GROND
Vanaf de autoloze straat stap je de woonkeuken binnen. Het hart van de woning is de ruime op maat gemaakte woonkeuken. Het aanrecht en de mooie ingebouwde houten  kastenwand zijn slim van opzet. De luxe keuken met koelvriescombinatie, heteluchtoven, wijn koelkast, een inductiekookplaat van Bora, vaatwasser en een kokendwaterkraan. 

De lichte woonkamer met ramen van plafond tot vloer is aan de achterzijde. Een brede en lichte leefruimte met zicht op het vaarwater. Hier heb je een klein balkon met een trap naar de recent aangelegde drijvende steiger aan de gracht. Je kunt hier je eigen boot aanleggen. 

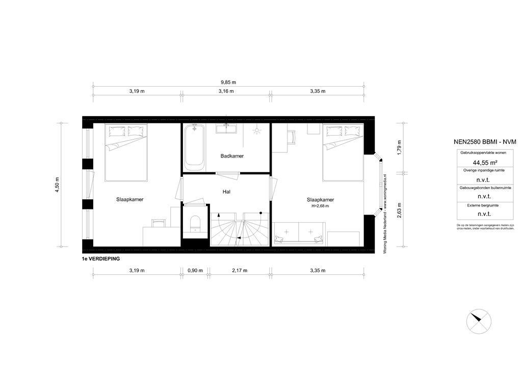
EERSTE VERDIEPING 
Twee ruime slaapkamers met meer dan voldoende ruimte voor een tweepersoonsbed, een bureau en een garderobekast. Beide kamers zijn lekker licht, door de vele ramen over de volle breedte. In het midden de moderne badkamer met ligbad, wastafelmeubel en inloopdouche. Voor extra comfort en gebruiksgemak is het toilet separaat in de ruime hal.
 
TWEEDE VERDIEPING
De bovenste verdieping is ingericht met de royale hoofdslaapkamer en eigen badkamer. Ook hier een hoog plafond van circa 2.60 meter met een charmante erker. De badkamer heeft een inloopdouche en een wastafelmeubel. Voor extra comfort en privacy is hier het derde toilet. In de hal is toegang naar de ruime vliering voor extra bergruimte. 

Vanuit deze verdieping heb je toegang tot het zonnige dakterras van 15 m2. Een beschutte plek om je even terug te trekken en heerlijk buiten te zitten. 

ERFPACHT
Gelegen op erfpachtgrond, voortdurend recht van erfpacht met jaarlijkse indexering. De canon bedraagt momenteel € 998,86 per jaar voor de woning en € 15,75 per jaar voor de parkeerplaats. 

BIJZONDERHEDEN
+ Royaal herenhuis van 154 m2 woonoppervlakte verdeeld over 4 woonlagen
+ Duurzaam wonen met vloerverwarming/ koeling en eigen zonnepanelen, met batterij
+ Prive dakterras en drijvende steiger aan de gracht voor een boot
+ Vier goede slaapkamers en twee badkamers
+ Eigen inpandige parkeerplek voor de auto (laadpaal voor elektrische auto mogelijk)
+ Voortdurende erfpacht van € 998,86 woning, € 15,75 parkeerplek (+ jaarlijkse indexering)
+ Actieve en professionele VvE met een Meerjarenonderhoudsplan en reserves
+ De servicekosten bedragen € 181 per maand
+ Oplevering kan vlot, in overleg

BEZICHTIGEN
Je kunt online een bezichtiging aanvragen, via de knop ‘Vraag bezichtiging aan’. Heb je liever persoonlijk contact, bel gerust met ons kantoor: 020 - 210 1048. Bekijk voor meer informatie de video, digitale brochure en plattegrond. Voor specifieke vragen kun je terecht bij verkopend makelaar: Susanne Dijkstra. 

+++

Spacious and bright townhouse on the waterfront on car-free Stettineiland in the sustainable neighborhood: the Houthavens.

The 154m² home is divided over four floors and features a particularly smart layout. An underground parking space directly opposite the entrance to your home and a mooring for a boat with a jetty right at your house. On the ground floor, a spacious living room with an open kitchen and living area overlooking the canal. Four spacious bedrooms, two bathrooms, and a roof terrace. The home is future-proof with an energy label A, underfloor heating and cooling, and solar panels. The leasehold costs are here are pleasantly low. Come and take a look and experience the high-quality finish and smart layout in a very complete family home in the popular Houthavens. We look forward to welcoming you.

Did you know that you can also schedule a viewing yourself? Press the ‘contact us’ button and receive a link immediately to schedule an appointment.

SURROUNDINGS
Spacious and bright homes in a water-rich environment with bridges and canals; that is the Houthavens neighborhood. A child-friendly place, with car-free streets and beautiful views over the IJ. The entire neighborhood has been transformed into a lively residential area with numerous amenities and cozy cafes and restaurants such as Anne & Max, Hotel & Brasserie Vessel (Boat&Co), Brasserie George, Bar Hout, Brouwerij Prael, and REM-Eiland.

Within walking distance is the charming Spaarndammerstraat, with a wide range of shops, good dining options, and schools. A few minutes further takes you to the lively Jordaan, Prinseneiland, the Canal Belt, and the Noordermarkt, featuring the organic market on Mondays and Saturdays. Here, too, you will find many boutiques and countless restaurants.

The neighborhood is easily accessible by public transport. Buses 22 and 48 are within walking distance. The A10 ring road is easily reachable by car within a few minutes. Central Station is a 10-minute bike ride away. The ferry to Amsterdam Noord is also within walking distance, allowing easy access to the NDSM site, the A’DAM Tower, and the Eye Filmmuseum.

LAYOUT

BASEMENT
The basement is wonderfully spacious and functionally laid out. From the parking garage, you step directly into your own hallway, with the large storage area containing a laundry room and technical equipment on the left (such as the home battery and systems for underfloor heating and cooling). On the other side are the first toilet and a storage cupboard under the stairs leading upstairs. The bedroom, measuring over 15 m² with a ceiling height of 2.68 m, is ideal for use as a teenager's room, home office, or guest accommodation.

The parking garage is located beneath the apartment. Your private parking space is directly at the entrance to the basement. Preparations for electric charging have already been made.

GROUND FLOOR
The heart of the home is the spacious, custom-made eat-in kitchen. The countertop and the beautiful built-in wooden cabinet wall are cleverly designed. The luxury kitchen features a fridge-freezer, convection oven, wine fridge, a Bora induction hob, dishwasher, and a boiling water tap. The bright living room with floor-to-ceiling windows is located at the rear. A wide and bright living space with a view of the waterway. Here you have a small balcony with stairs leading to the recently constructed floating jetty on the canal. You can moor your own boat here.

FIRST FLOOR
Two spacious bedrooms with more than enough room for a double bed, a desk, and a wardrobe. Both rooms are pleasantly bright thanks to the many full-width windows. In the middle is the modern bathroom with a bathtub, vanity unit, and walk-in shower. For extra comfort and convenience, the toilet is separate in the spacious hallway.

SECOND FLOOR
The top floor features the spacious master bedroom and private bathroom. Here too, there is a high ceiling of approximately 2.60 meters with a charming bay window. The bathroom has a walk-in shower and a vanity unit. For extra comfort and privacy, the third toilet is located here. The hallway provides access to the spacious attic for additional storage space.

From this floor, you have access to the sunny roof terrace of 15 m². A sheltered spot to retreat for a while and enjoy sitting outside.

LEASEHOLD
Located on leasehold land, perpetual leasehold right with annual indexation. The ground rent currently amounts to € 998.86 per year for the home and € 15,75 per year for the parking space. 

DETAILS
+ Spacious townhouse with 154 m² of living space spread over 4 floors
+ Sustainable living with underfloor heating/cooling, private solar panels (including a battery)
+ Private roof terrace and floating jetty on the canal for a boat
+ Four good-sized bedrooms and two bathrooms
+ Private indoor parking space for a car (electric car charging station available)
+ Perpetual leasehold of € 998,86 per home, € 15,75 per parking space (+ annual indexation)
+ Active, professional Owners' Association with a Multi-Year Maintenance Plan and reserves
+ Service charges amount to € 181 per month
+ Quick handover possible, subject to agreement

VIEWINGS
You can request a viewing online via the ‘Request viewing’ button. If you prefer personal contact, please feel free to call our office: 020 - 210 1048. For more information, view the video, digital brochure, and floor plan. For specific questions, you can contact the selling agent: Susanne Dijkstra.

Kenmerken