Beschrijving
Dubbel bovenhuis van 78m2 op eigen grond met lift en de mogelijkheid van het realiseren van een dakterras aan de Zieseniskade in Amsterdam Centrum. Vanuit je appartement heb je een fantastisch uitzicht over de binnenstad en het Vondelpark als achtertuin. Rustig wonen en op loopafstand van het Vondelpark, het Leidseplein en de grachten. Een goed ingedeeld appartement met een ruime woonkamer met open keuken. Op de bovenste etage zijn twee ruime slaapkamers en een badkamer. Het kleinschalige pand heeft een gezonde Vereniging van Eigenaren. Kom kijken naar dit lichte appartement met lift en de mogelijkheid voor een dakterras in het hart van Amsterdam. We ontvangen je graag.
+ English version below +
OMGEVING
De Zieseniskade is een rustige straat gelegen tussen het Leidseplein en de Nieuwe Spiegelstraat. Fraaie grachtenpanden bestaande uit woningen en kantoren met mooie statige gevels. De Zieseniskade is een prima uitvalsbasis om, alles wat Amsterdam heeft te bieden, te verkennen. De gezellige Utrechtsestraat met mooie winkels en boetieks is op loopafstand en voor de dagelijkse boodschappen is de Albert Cuypmarkt op fietsafstand. Hier zit je in het culturele hart van Amsterdam. Het Museumplein, het Koninklijk Theater Carré, het Muziektheater, De Kleine Komedie, de bioscopen Tuschinski en de Munt, zijn dichtbij. Om de hoek aan het Leidseplein zijn de Stadsschouwburg, theater De Balie, Paradiso, de Melkweg, het DeLaMar theater en het City Theater. Hét knooppunt voor openbaar vervoer vind je op het Leidseplein.
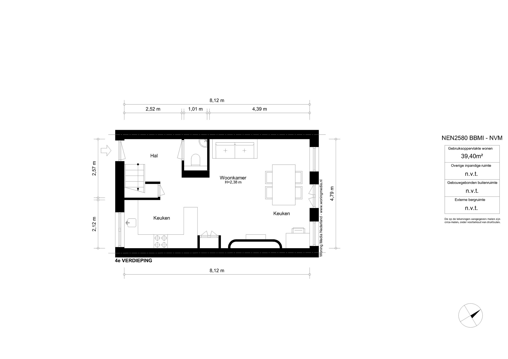
ENTREE
De afgesloten hal brengt je met de trap of met de lift naar de vierde etage. In je hal van de woning is het eerste toilet met fontein en de trap naar de bovenste etage. Hier stap je zo de keuken in.
LIVING & KEUKEN
Aan de grachtzijde is de woonkamer met zicht op het water van de Lijnbaansgracht. Heerlijk veel licht door de twee grote ramen en de balkondeuren en de sfeervolle schouw met gashaard. Het frans balkon is op het zuidoosten. De nette keuken is in een u-opstelling en heeft een vaatwasser, kookplaat met afzuigkap, oven en koel vriescombinatie. Tevens is er een handige bergkast in de keuken. In de gehele woning ligt een donkere vloer met houtentoplaag.
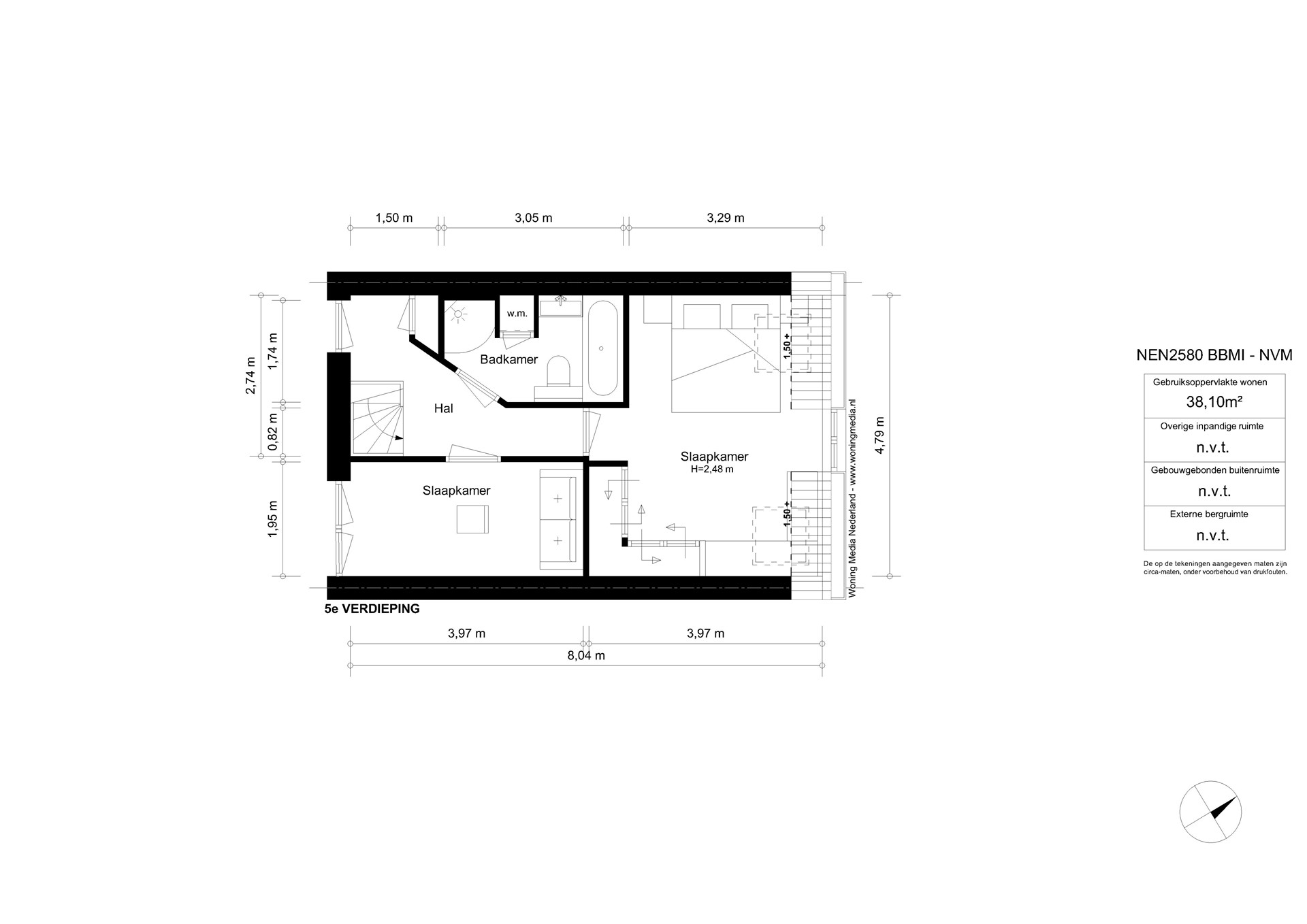
TWEE SLAAPKAMERS
Met de trap kom je op de slaapetage. Een ruime slaapkamer aan de voorzijde en een aan de achterzijde. Beide slaapkamers hebben genoeg ruimte voor een twee persoonsbed. De grootste kamer aan de voorzijde heeft een ingebouwde garderobekast. Deze kamer is sfeervol door de kapconstructie van het dak en de andere kamer heeft openslaande Frans balkondeuren en een fantastisch uitzicht op het Rijksmuseum.
BADKAMER
De verzorgde badkamer heeft een inloopdouche, bad, het tweede toilet en een wastafelmeubel. Ook is hier de wasmachine en droger aansluiting.
DAKTERRAS
Er kan een dakterras aangelegd worden. Het terras is opgenomen in de splitsingsakte.
Het aanvragen van een omgevingsvergunning bij de gemeente Amsterdam dient nog wel te gebeuren. Een topspot om van de mooie architectuur van de binnenstad te genieten.
BIJZONDERHEDEN
+ Dubbel bovenhuis van 78m2 met fantastisch uitzicht over de stad
+ Toplocatie: Rijksmuseum, Vondelpark, de grachten en het Leidseplein om de hoek
+ Eigen grond, dus geen sprake van erfpacht
+ Energielabel B: lage stookkosten, goed geïsoleerd
+ Vernieuwbouw in 2001
+ Lift is aanwezig (buiten werking op dit moment)
+ Realiseren dakterras is mogelijk
+ De servicekosten zijn €168 per maand
+ Kleine Vereniging van Eigenaren
+ Niet zelf-bewoningsclausule van toepassing ivm verhuurd geweest
+ Project Notaris Buma Algera
+ Oplevering in overleg: kan vlot
BEZICHTIGEN
Je kunt online een bezichtiging aanvragen, via de knop ‘Vraag bezichtiging aan’. Heb je liever persoonlijk contact, bel gerust met ons kantoor: 020 - 210 1048. Bekijk voor meer informatie de video, digitale brochure en plattegrond. Voor specifieke vragen kun je terecht bij verkopend makelaar: Marieke Lammers
+++
A double upper-level apartment of 78 m² on freehold land, featuring an elevator and the possibility to create a roof terrace at the Zieseniskade in Amsterdam Centrum. From the apartment, you enjoy fantastic views over the historic city centre, with the Vondelpark practically as your backyard. Quiet living within walking distance of the Vondelpark, Leidseplein, and the canals. The apartment is well laid out, offering a spacious living room with an open kitchen. On the top floor, you will find two generously sized bedrooms and a bathroom. The small-scale building has a financially healthy Homeowners’ Association (VvE). Come and view this bright apartment with elevator and roof terrace potential in the heart of Amsterdam. We look forward to welcoming you.
LOCATION
Zieseniskade is a quiet street situated between Leidseplein and Nieuwe Spiegelstraat. The area is characterized by beautiful canal houses comprising residential and office spaces with stately façades. It is an excellent base from which to explore everything Amsterdam has to offer. The lively Utrechtsestraat, with its boutique shops and specialty stores, is within walking distance. For daily groceries, the Albert Cuyp Market is just a short bike ride away. This is the cultural heart of Amsterdam. Museumplein, the Royal Theatre Carré, the Muziektheater, De Kleine Komedie, and cinemas such as Tuschinski and Pathé de Munt are all nearby. Around the corner at Leidseplein you will find the Stadsschouwburg, De Balie theatre, Paradiso, Melkweg, DeLaMar Theatre, and the City Theatre. Leidseplein is also a major public transport hub.
ENTRANCE
The secure entrance hall provides access to the fourth floor via staircase or elevator. In the apartment hallway, you will find the first toilet with a washbasin and the staircase leading to the top floor. From here, you step directly into the kitchen area.
LIVING ROOM & KITCHEN
The living room is situated on the canal side and overlooks the water of the Lijnbaansgracht. The space is filled with natural light thanks to two large windows and French doors, and features an attractive fireplace with gas insert. The French balcony faces southeast.
The well-maintained kitchen is laid out in a U-shape and is equipped with a dishwasher, cooktop with extractor hood, oven, and fridge-freezer combination. There is also a convenient storage cupboard in the kitchen. Throughout the apartment, you will find a dark floor with a wooden top layer.
TWO BEDROOMS
The staircase leads to the sleeping floor. There is one spacious bedroom at the front and one at the rear. Both rooms offer sufficient space for a double bed. The larger front bedroom features a built-in wardrobe and has a charming character due to the exposed roof structure. The second bedroom has French doors opening outward and offers a fantastic view of the Rijksmuseum.
BATHROOM
The well-kept bathroom includes a walk-in shower, bathtub, second toilet, and vanity unit. The connections for a washing machine and dryer are also located here.
ROOF TERRACE
A roof terrace can be constructed. The terrace is already included in the deed of division. An environmental permit from the Municipality of Amsterdam is still required. This would be a prime spot to enjoy the beautiful architecture of the historic city centre.
SPECIAL FEATURES
+ Double upper-level apartment of 78 m² with fantastic city views
+ Prime location: Rijksmuseum, Vondelpark, canals, and Leidseplein just around the corner
+ Freehold property (no ground lease)
+ Energy label B: low heating costs and good insulation
+ Redeveloped in 2001
+ Elevator present (currently not operational)
+ Possibility to create a roof terrace
+ Service charges: €168 per month
+ Small Homeowners’ Association (VvE)
+ Non-occupancy clause applies due to previous rental.
+ Project Notary Buma Algera
+ Transfer in consultation; quick completion possible
VIEWINGS
You can request a viewing online via the “Request a Viewing” button. Prefer personal contact? Feel free to call our office at +31 (0)20 210 1048. For more information, please view the video, digital brochure, and floor plan. For specific questions, please contact the selling agents: Marieke Lammers