Description
Bright and well-designed 3-room apartment (54 m²) with balcony in the quiet Eerste Atjehstraat in Amsterdam Oost. The apartment features two comfortable bedrooms, a semi-open kitchen, and a spacious balcony in the charming Indische Buurt neighbourhood. This small, well-maintained complex is situated on freehold land and enjoys a peaceful location just around the corner from the lively Javastraat and Muiderpoort Station. The apartment is tastefully decorated with white wooden floors. Three large windows at the front make it remarkably bright. Come and take a look! We look forward to welcoming you.
SURROUNDINGS
Eerste Atjehstraat is in the heart of Indische Buurt, a neighbourhood that has quickly become one of Amsterdam's most beloved and vibrant areas. Javastraat, Molukkenstraat, and Javaplein are just around the corner for your daily groceries. There are also plenty of restaurants and cafes, including hotspots like Wilde Zwijnen, Bar Basquiat, Louie Louie, and Brouwerij 't IJ. For relaxation, sports, and dog walking, Oosterpark and Flevopark are just a stone's throw away.
Furthermore, the property is very conveniently located near the major roads. It’s less than five minutes from the A10 ring road and a two-minute walk from Muiderpoort train station. The tram is also within walking distance, taking you to other parts of the city in no time.
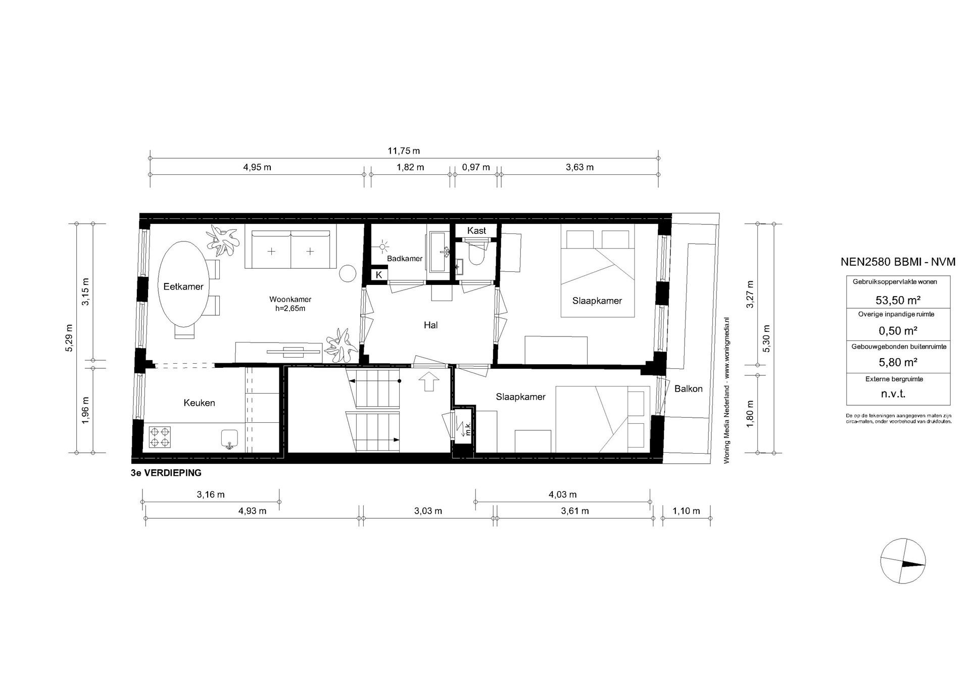
HALLWAY
The apartment is on the third floor. From the communal staircase, you enter the wide hallway. Here you'll find the bathroom and separate toilet. At the front of the apartment is the entrance to the living room. The two bedrooms and balcony are at the rear.
LIVING ROOM & KITCHEN
The bright living room has room for a large dining table and sitting area. The kitchen offers plenty of space with wall cabinets. The semi-open kitchen is fully equipped with built-in appliances: a 4-burner gas stove, extractor hood, dishwasher, combination oven/microwave, steam oven, and refrigerator. The washing machine is also conveniently located here.
TWO BEDROOMS
The two bedrooms are at the rear of the apartment. The main bedroom has space for a double bed and a large wardrobe. The second bedroom also fits a bed, a wardrobe, and provides access to the balcony.
BATHROOM
The bathroom features a tiled floor (white/black), a walk-in shower, a vanity with a heated mirror, and underfloor heating.
BALCONY
The 6m² balcony overlooks the courtyard garden. Here you can enjoy the afternoon/evening sun.
STORAGE
The 4m² storage room is located in the attic and has ample space.
SPECIAL FEATURES
+ Charming and bright 54m² apartment
+ Well-maintained property in a quiet street
+ Two good-sized bedrooms with a balcony
+ Freehold land, so no leasehold
+ The building was renovated around 1973
+ Luxurious bathroom with underfloor heating
+ Spacious storage room in the attic
+ Service charges €72 per month
+ Delivery in consultation, can be done quickly
For more information, see the video, digital brochure, and floor plan. To schedule an appointment, please call the office at 020 - 210 1048 or send an email. For specific questions, please contact the selling agent: Marieke Lammers.