Beschrijving
Charmant twee-kamer appartement (39 m2) op de eerste etage in een rustige straat in trendy De Pijp in Amsterdam Zuid. Om de hoek van het mooie Sarphatipark, het gezellige Gerard Douplein en de Albert Cuypmarkt. Het metrostation De Pijp is op loopafstand en brengt je in een mum van tijd op de Zuidas. Het appartement ligt aan de rustige achterzijde en is in 2019 gerenoveerd. Het is super goed ingedeeld met een aparte slaapkamer en keuken. Ook is er een ruime berging op de zolderetage. Nieuwsgierig naar dit toffe appartement in De Pijp? Laat je inspireren door de video en kom kijken. We ontvangen je graag.
++ English below ++
Wist je dat je ook zelf een bezichtiging kunt plannen? Druk op de knop rechts ‘neem contact op’ en ontvang direct een link om een afspraak in te plannen.
OMGEVING
Gelegen in het mooie stuk van De Pijp, op loopafstand van het Sarphatipark en de Albert Cuypmarkt. Voor de dagelijkse boodschappen ga je naar de Ferdinand Bolstraat, Albert Cuypstraat en Ceintuurbaan. In de kleine straatjes van De Pijp zijn veel leuke winkels, restaurants, cafés en boetiekjes. Het is nog geen 5 minuten fietsen naar de grachten, het centrum en de Zuidas.
De woning ligt gunstig ten opzichte van de uitvalswegen en de rest van de stad. Binnen enkele minuten ben je op de ring A-10. De Noord/Zuidlijn halte in de Ferdinand Bolstraat is op loopafstand waardoor je snel op Centraal Station en Station Zuid bent en vanaf de Van Woustraat kun je met de tram makkelijk naar het Amstelstation. In de straat zelf is enkel bestemmingsverkeer.
ENTREE
Via het gemeenschappelijke trappenhuis bereik je de eerste verdieping. Hier stap je zo je eigen woonkamer in.
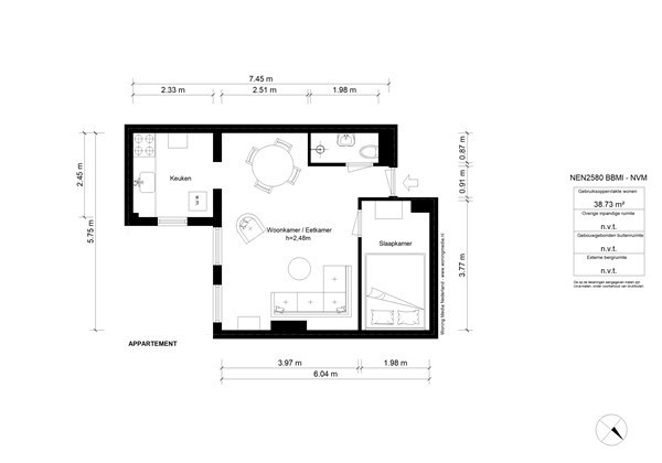
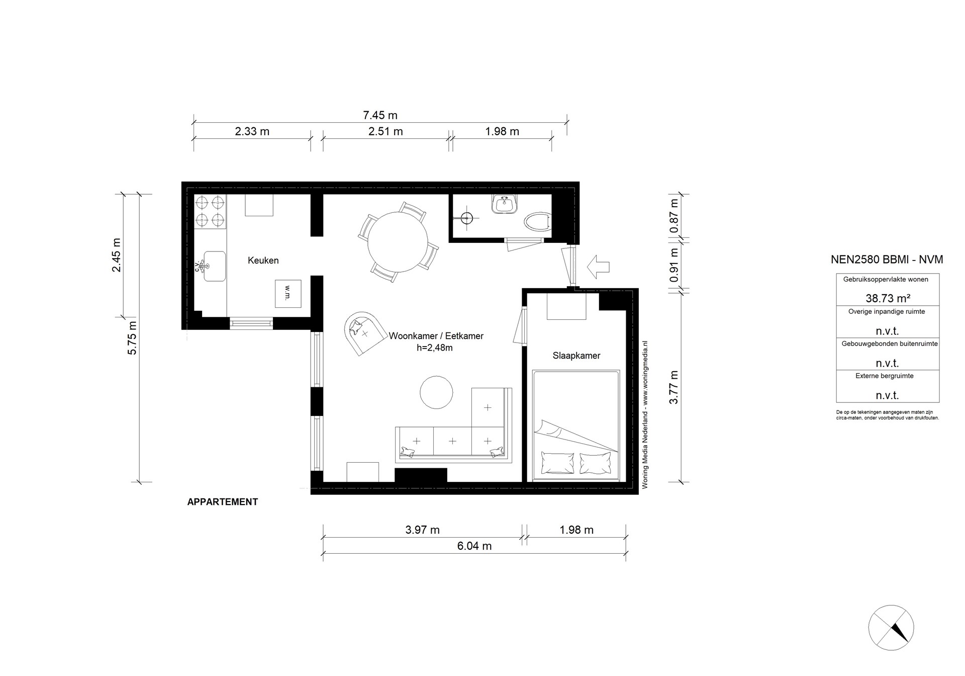
LIVING
De woonkamer is aan de zonnige achterzijde. Hier zit je heerlijk rustig. Genoeg plek voor een bank en in het hoekje naar de keuken de eettafel. De kunststof raamkozijnen hebben allen dubbel glas. In het gehele appartement ligt een laminaatvloer.
KEUKEN
De witte keuken heeft een 4-pits gaskookplaat met afzuigkap met daaronder de koelkast. Verder is hier de wasmachine geplaatst met daarbovenop een kleine vriezer. Aan de muur hangt een combimagnetron.
EEN SLAAPKAMER
De slaapkamer is direct links als je binnenkomt. Hier kun je met gemak een ruim tweepersoonsbed en een kledingkast plaatsen.
BADKAMER
De badkamer is mooi betegeld met een lichte tegel. Er is een inloopdouche, wasbak en het toilet.
BIJZONDERHEDEN
+ Charmant gerenoveerd appartement in trendy De Pijp
+ Goede indeling met aparte keuken, badkamer en slaapkamer
+ Gerenoveerd in 2019, zo te betrekken
+ Energielabel C
+ Berging op zolderetage van 5 m2
+ Servicekosten van € 206 per maand
+ Erfpacht afgekocht tot 2058
+ Niet zelf-bewoning clausule van toepassing ivm verhuurd geweest
+ Ouderdomsclausule van toepassing
+ Oplevering in overleg, kan per direct
BEZICHTIGEN
Je kunt online een bezichtiging aanvragen, via de knop ‘Vraag bezichtiging aan’. Heb je liever persoonlijk contact, bel gerust met ons kantoor: 020 - 210 1048. Bekijk voor meer informatie de video, digitale brochure en plattegrond. Voor specifieke vragen kun je terecht bij verkopend makelaar: Marieke Lammers
+++
Charming one-bedroom apartment (39 m2) on the first floor in a quiet street in trendy De Pijp in Amsterdam South. Around the corner from the beautiful Sarphatipark, the lively Gerard Douplein and the Albert Cuyp Market. The De Pijp metro station is within walking distance and takes you to the Zuidas in no time. The apartment is located at the quiet rear side and was renovated in 2019. It has a very efficient layout with a separate bedroom and kitchen. There is also a spacious storage room in the attic. Curious about this great apartment in De Pijp? Get inspired by the video and come take a look. We would be happy to welcome you.
Did you know that you can also schedule a viewing yourself? Click the ‘contact us’ button on the right side and immediately receive a link to schedule an appointment.
SURROUNDINGS
Located in the beautiful part of De Pijp, within walking distance of Sarphatipark and the Albert Cuyp Market. For daily groceries you can go to Ferdinand Bolstraat, Albert Cuypstraat and Ceintuurbaan. The small streets of De Pijp are filled with many nice shops, restaurants, cafés and boutiques. It is less than a 5-minute bike ride to the canals, the city centre and the Zuidas.
The property is conveniently located with respect to the main roads and the rest of the city. Within a few minutes you are on the A10 ring road. The North/South metro line stop on Ferdinand Bolstraat is within walking distance, allowing you to quickly reach Central Station and Station Zuid. From Van Woustraat you can easily take the tram to Amstel Station. The street itself only has local traffic.
ENTRANCE
Via the communal staircase you reach the first floor. Here you enter directly into your own living room.
LIVING
The living room is located at the sunny rear side. It is wonderfully quiet here. There is plenty of space for a sofa and, in the corner towards the kitchen, the dining table. The plastic window frames are all fitted with double glazing. The entire apartment has laminate flooring.
KITCHEN
The white kitchen has a 4-burner gas stove with an extractor hood and the refrigerator underneath. The washing machine is also placed here with a small freezer on top. A combi microwave is mounted on the wall.
ONE BEDROOM
The bedroom is immediately on the left when you enter. Here you can easily place a spacious double bed and a wardrobe.
BATHROOM
The bathroom is nicely tiled with light-colored tiles. It has a walk-in shower, sink and toilet.
DETAILS
+ Charming renovated apartment in trendy De Pijp
+ Good layout with separate kitchen, bathroom and bedroom
+ Renovated in 2019, ready to move in
+ Energielabel C
+ Storage room in the attic of 5 m2
+ Service costs of € 206 per month
+ Ground lease paid off until 2058
+ Non-occupancy clause applies due to previous rental
+ Age clause applies
+ Delivery in consultation, available immediately
VIEWING
You can request a viewing online via the ‘Request viewing’ button. If you prefer personal contact, please feel free to call our office: 020 - 210 1048. For more information, view the video, digital brochure and floor plan. For specific questions you can contact the selling real estate agent: Marieke Lammers.