Beschrijving
Charmant gerenoveerd 3-laags bovenhuis van circa 106m2 BVO (61m2 NEN 2580 door de kap etage) aan de rustige en brede straat Rusland. Hier heb je een prachtig uitzicht op het water van de Kloveniersburgwal en woon je in hartje Centrum. Het monumentale pand op eigen grond met nieuwe fundering is goed onderhouden en heeft drie brede ramen op het zuiden. Je woont hier tussen de monumentale panden van de Universiteit van Amsterdam, zoals de Oudemanhuispoort, om de hoek van het Rokin met de metro naar het Centraal Station en het chique hotel The Grand Amsterdam aan de Oudezijds Voorburgwal. Kom dit charmante en lichte bovenhuis met drie slaapkamers op een historische plek in het centrum van Amsterdam bezoeken. We ontvangen je graag.
+ see English below+
OMGEVING
Het Rijksmonument uit 1759 is goed onderhouden met een nieuwe fundering uit 2014. Ook is het dak vernieuwd, is er nieuw leidingwerk (elektra en aan- en afvoer leidingen) en zijn de dakgoten en loodslabben vervangen. Het pand ligt midden in het centrum van Amsterdam aan Rusland. Tussen het Rokin, het Rembrandtplein, de Nieuwmarkt en de sfeervolle Staalstraat met z’n Amsterdamse horeca en speciaalzaken zoals café De Doelen en Chocolaterie Puccini Bomboni. Wonen op Rusland is de ultieme plek om te genieten van alles wat Amsterdam te bieden heeft: galeries, theaters, restaurants, clubs en De Bijenkorf. Voor verse producten kun je op zaterdag naar de biologische markt op de Nieuwmarkt.
Amsterdam Centraal Station is op circa 10 minuten lopen. Binnen enkele minuten ben je bij de metro Nieuwe Hoogstraat bij de Zuiderkerk. Binnen 5 minuten kun je op het Rokin in de Noord/Zuidlijn stappen richting Noord of de Zuidas.
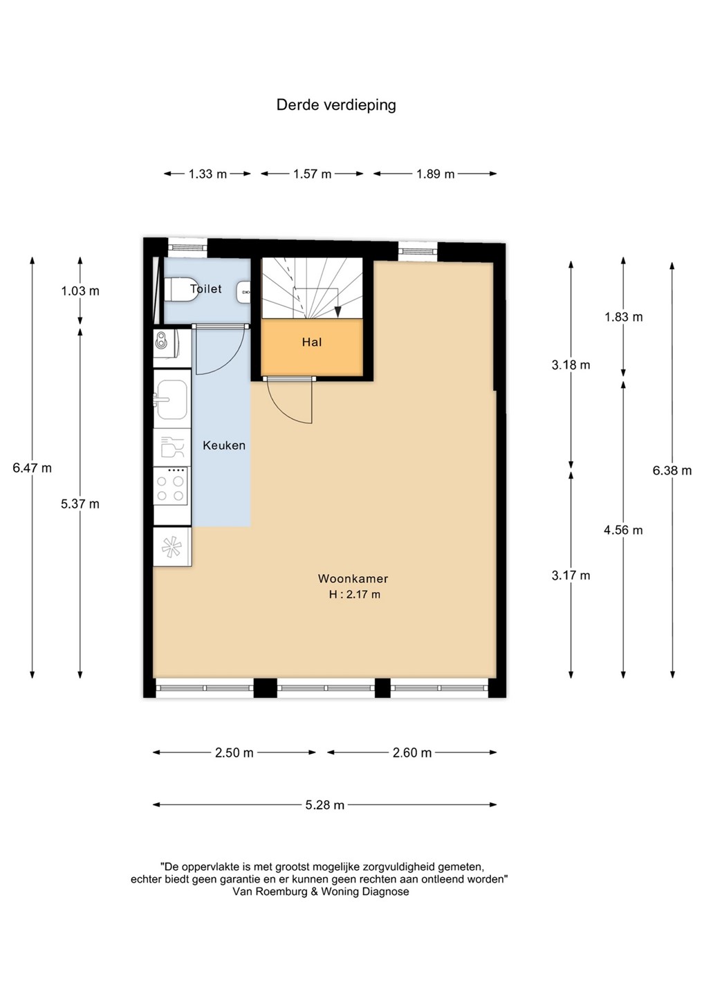
HAL
Via de gemeenschappelijke ingang kom je bij de entree van de woning op de tweede etage. Hier is je eigen hal met de trap naar de woonetage.
LIVING & KEUKEN
De gezellige woonkamer is mooi breed met drie ramen en heeft een riant uitzicht op het water van de Kloveniersburgwal. De woonkamer is ruim genoeg voor een eet- en zithoek en een werkplek. In de gehele woning ligt een mooie eikenhouten vloer.
De witte keuken heeft een vierpits-gasfornuis met afzuigkap en oven, een spoelbak, koel vriescombinatie en bovenkastjes. Ook is hier handig de CV-ketel weggewerkt en is er ruimte voor de wasmachine. Naast de keuken is het eerste toilet.
3 SLAAPKAMERS
Via de trap kom je op de slaapetage. Een ruime overloop waar je een werkplek kunt creëren. De twee sfeervolle slaapkamers hebben genoeg ruimte voor een 2-persoonsbed en een garderobekast. De derde slaapkamer is op de kapetage. In alle slaapkamers komt heerlijk veel licht binnen en is de authentieke houten balkenconstructie mooi zichtbaar.
BADKAMER
De witte badkamer met zwarte tegelvloer heeft een inloopdouche, een wastafel en een tweede toilet. De ramen zorgen voor natuurlijke ventilatie.
BIJZONDERHEDEN
+ Charmant 3-laags bovenhuis met mooi uitzicht over het water
+ Drie goede slaapkamers
+ Goed onderhouden Rijksmonument uit 1759
+ Nieuwe fundering uit 2014
+ Pand is gesplitst in een bedrijfsruimte en drie woningen
+ Vereniging van Eigenaren is recent opgericht
+ Eigen grond, dus geen sprake van erfpacht
+ Servicekosten zijn €150 per maand
+ Projectnotaris Berger Notariaat
+ Oplevering kan per direct; instapklaar
Bekijk voor meer informatie de video, digitale brochure en plattegrond. Voor het plannen van een afspraak, bel gerust met ons kantoor: 020 - 210 1048 of stuur een email. Voor specifieke vragen kun je terecht bij verkopend makelaar: Susanne Dijkstra
+++
Located on the quiet and wide street Rusland, this beautifully renovated upper apartment offers stunning views over the Kloveniersburgwal canal and a prime location right in the heart of Amsterdam’s city centre. The monumental freehold building, with renewed foundations, is well maintained and features beautiful south-facing high windows. You’re in the mids of historic buildings of the University of Amsterdam, like the Oudemanhuispoort. And just around the corner from Rokin with its metro connection to Central Station and Zuidas/WTC business district and close to the elegant The Grand Amsterdam hotel on Oudezijds Voorburgwal. Come and visit this charming, light-filled three-bedroom apartment in a historic part of central Amsterdam. We’d be delighted to show you around.
SURROUNDINGS
This listed monument dating from 1759 has been carefully maintained, with its foundations renewed in 2014. The roof has also been replaced, the electrical wiring updated, and the gutters and leadwork renewed. The property is ideally situated in the very heart of Amsterdam, on Rusland, between Rokin, Rembrandtplein, Nieuwmarkt, and the atmospheric Staalstraat, known for its cafés and speciality shops such as Café De Doelen and Chocolaterie Puccini Bomboni. Living on Rusland offers the ultimate opportunity to enjoy everything Amsterdam has to offer: galleries, theatres, restaurants, clubs, and De Bijenkorf department store. For fresh organic produce, the Saturday farmers’ market on Nieuwmarkt is only a short stroll away.Amsterdam Central Station is about a 10-minute walk, and within 5 minutes you can reach Nieuw Hoogstraat metro at the Zuiderkerk. On the Rokin is the metro station for the North/South line towards Amsterdam North or the Zuidas business district.
ENTRANCE
Through the shared entrance, you reach the apartment’s private entrance on the second floor, where a hallway with stairs leads up to the living area.
LIVING ROOM & KITCHEN
The bright and welcoming living room spans the full width of the property, with three large windows offering magnificent views over the Kloveniersburgwal canal. There is ample space for a dining and seating area, as well as a home workspace. The entire apartment features an elegant oak wooden floor. The white kitchen is fitted with a four-burner gas hob, extractor hood, oven, sink, fridge-freezer, and upper cabinets. The central heating boiler is neatly concealed here, and there is also space for a washing machine. There’s a separate toilet next to the kitchen.
THREE BEDROOMS
A staircase leads up to the bedroom floor, with a spacious landing that could also serve as a small workspace. The two charming bedrooms both offer enough space for a double bed and wardrobe. The third bedroom is located on the top attic level, featuring exposed wooden beams and plenty of natural light.
BATHROOM
The white bathroom with black tiled flooring includes a walk-in shower, washbasin and second toilet. The windows provide plenty of natural ventilation.
PARTICULARS
+ Charming three-level upper apartment with lovely canal views
+ Three good-sized bedrooms
+ Well-maintained listed building (Rijksmonument) dating from 1759
+ Renewed foundation (2014)
+ Building divided into a commercial space and three apartments
+ Newly established Homeowners’ Association (VvE)
+ Freehold property so no ground lease
+ Monthly service charges: €150
+ Project notary: Berger Notariaat
+ Available immediately; move-in ready
For more information, please view the video, digital brochure and map. To schedule a viewing, feel free to call the office: 020 - 210 1048 or send an email. For specific questions, please contact the selling broker: Susanne Dijkstra.